








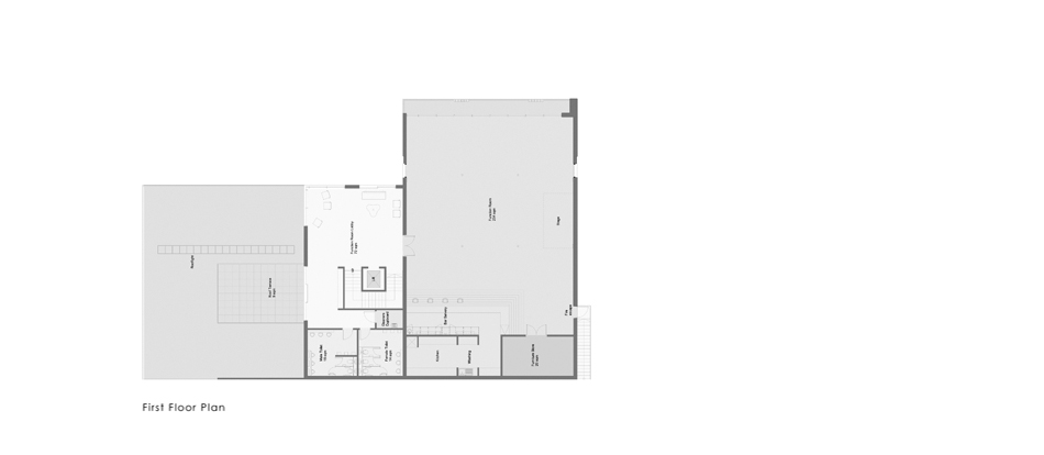
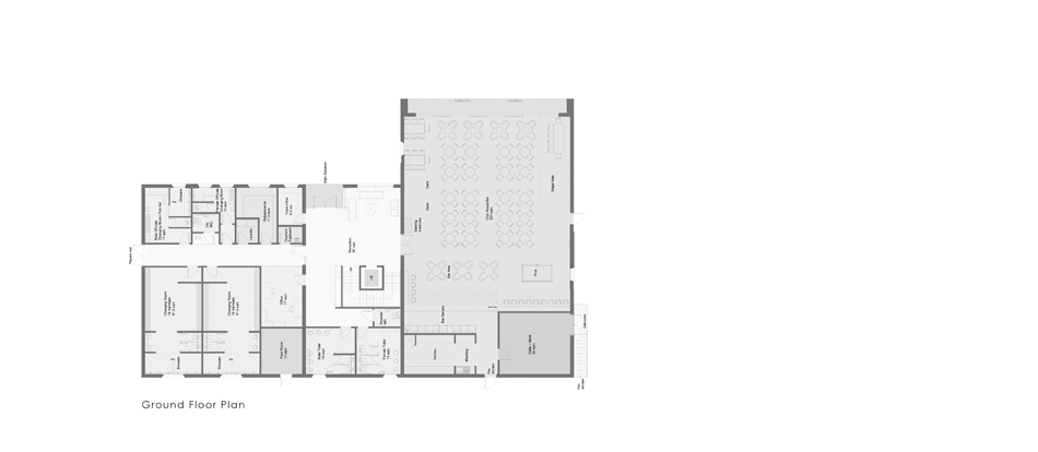
A+D Studio were commissioned to undertake the complete design and
delivery of a new club facility for Blackstone Sport and Social Club
in Stamford, Lincolnshire designed to replace the existing clubhouse and changing rooms which were becoming dated and to enable
Blackstones Football Club to have facilities appropriate to their ambition to progress further up the leagues.
The bold modern design comprises multi-function bar and entertainment
area, fully serviced function room catering for 250 people and football
club facilities to FA standards.
Planning Permission was granted in August 2009.